The Boomerang
An airport concept inspired by the shape and movement of a boomerang. You'll be back.
All plans and renderings were produced in Revit.
An airport concept inspired by the shape and movement of a boomerang. You'll be back.
All plans and renderings were produced in Revit.
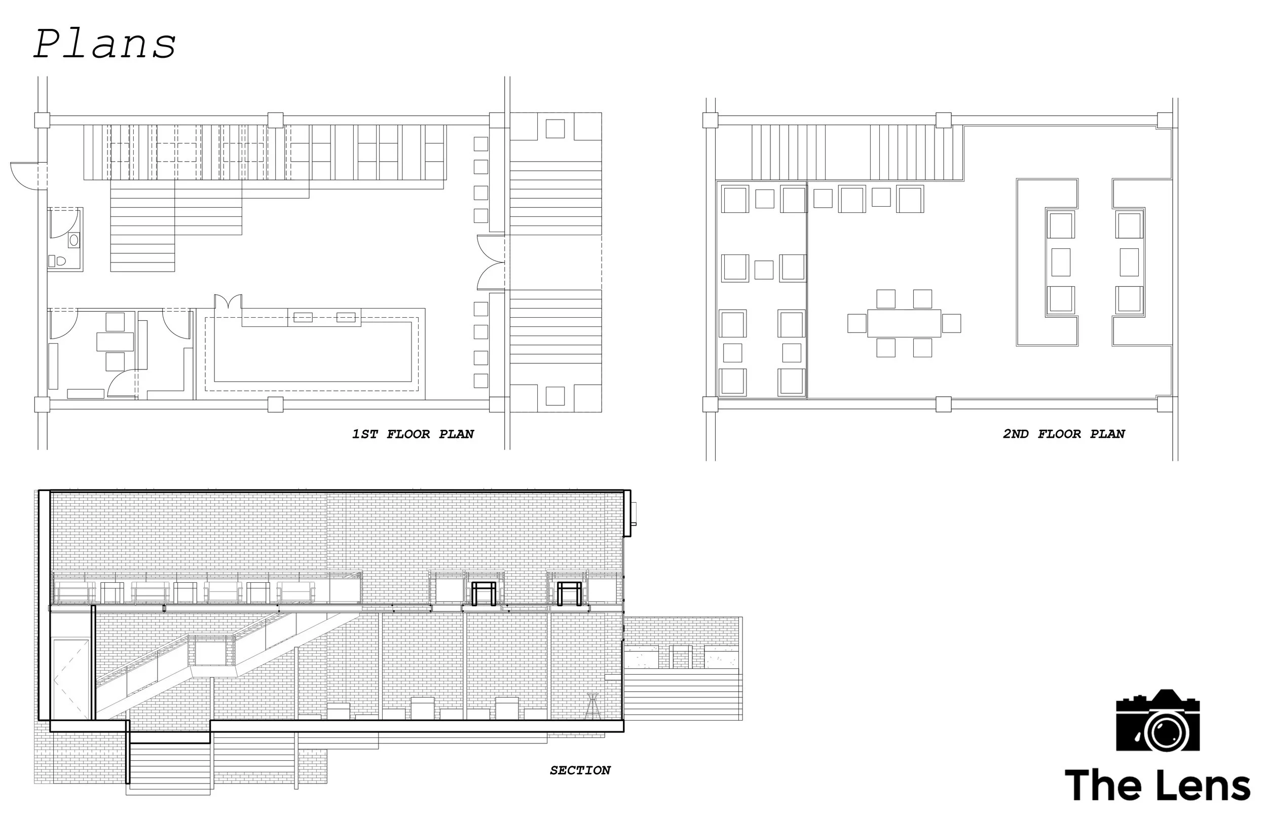
A cafe concept inspired by Hitchcock's voyeuristic film, Rear Window.
All plans and renderings were produced in Revit.
A permanent farmer's market for the city of Santa Monica.
All plans and renderings were produced in Revit.
Design for the new Beverly Hills location, where jet setter style meets the glamour of old Hollywood.
Plans produced in AutoCAD, Renderings produced in Revit.
Come fly with us